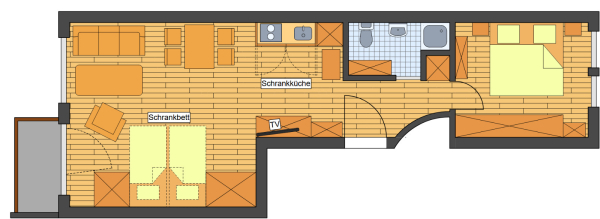
Wohnung «Rothorn App. 54»
Wohnung
| Zimmer | 2½ | |
| Betten | 4 | |
| Zusatzbetten | 1 | |
| Küche | Kochnische, Backofen, Kühlschrank, Kaffeemaschine, Fondue, Raclette | |
| Badezimmer | mit WC, Dusche, Föhn | |
| Bettwäsche | nicht verfügbar | |
| Küchenwäsche | nicht verfügbar | |
| Frottéewäsche | nicht verfügbar | |
| Balkon | vorhanden | |
| Unterhaltung | Radio, Fernseher | |
| WLAN | vorhanden | |
| Hunde | sind nicht erlaubt | |
| Rauchen | ist nicht erlaubt | |
| Gebäude | Mehrfamilienhaus, Lage: Engelsburg | |
Mietzeiten | ||
| Anreise | 13.00 | |
| Abreise | 10.00 | |
Mietkosten
Winter: 150 CHF/TagBei 5 Personen 20.- Fr. Aufpreis/Nacht
Nebenkosten
KehrichtTourismusabgabe
Reinigung
Adresse Ferienwohnung
Engelsburg 20
6068 Melchsee-Frutt
Vermietung
T.+R. Bär
5746 Walterswil
Tel. 062 797 16 33
E-Mail th.baer@hotmail.com

